Refine Search

189 S Orange Avenue, Unit 1900-1970, Orlando, FL 32801

$2,999,999

43 Total Photos [Click to View All]

Property Description

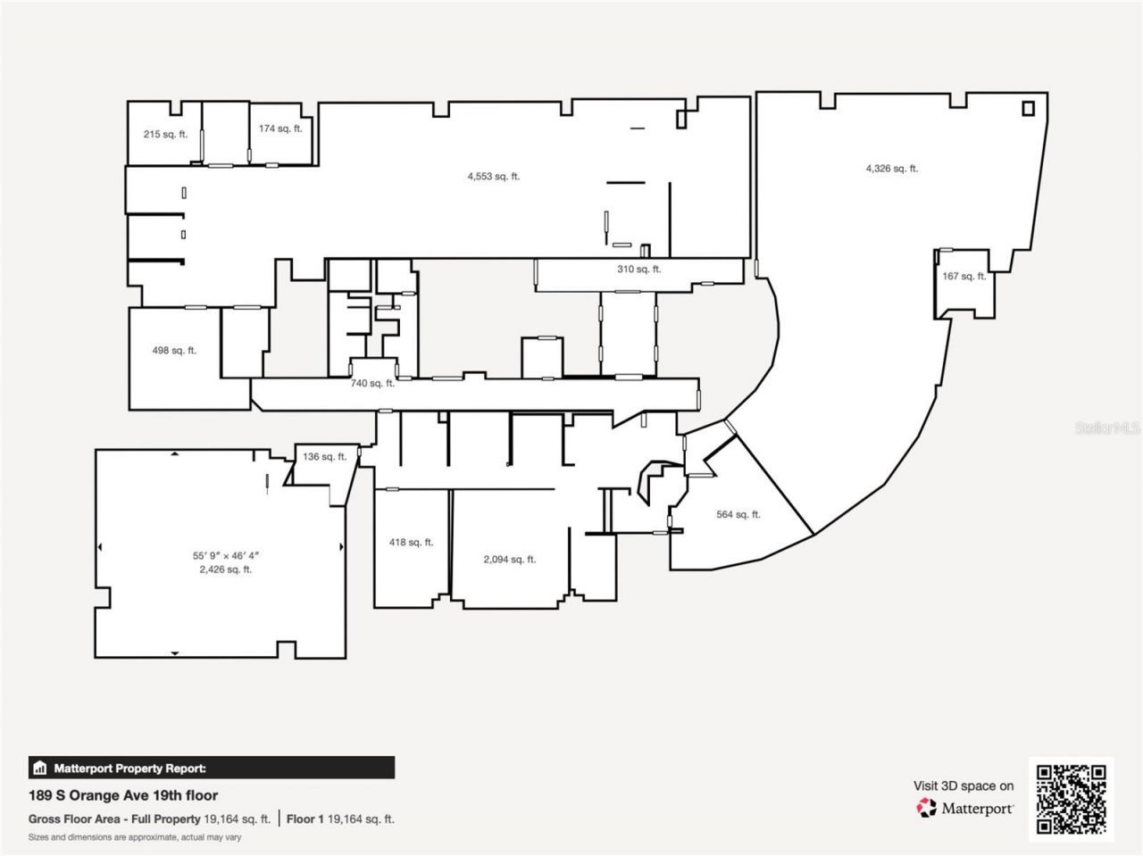
Unlock a rare opportunity to occupy or invest in a full floor within one of Downtown Orlando's most recognizable Class A office towers.The 19th floor at The Plaza South Tower offers +19,032 rentable square feet (+16,548 usable) across six modern suites (1900-1970 S), with options for full-floor occupancy or divisible configurations starting around +2,500 RSF.Highlights:*Premium Class A finishes with floor-to-ceiling glass*Multiple private balconies with skyline views*Efficient central-core layout for flexible demising*Modern elevator lobby and secure access*Covered parking available onsite*Walkable to Amway Center, Kia Center, and downtown diningPerfect for corporate headquarters, professional firms, or creative offices seeking a premier downtown address with high visibility and exceptional amenities.

189 S Orange Avenue, Unit 1900-1970 | MLS# O6356122

This commercial property located at 189 S Orange Avenue, Unit 1900-1970, Orlando, FL 32801 is currently listed for sale with an asking price of $2,999,999. Search Orlando real estate on jsaint.watsonrealtycorp.com today.

Property Features

Property Type: Commercial - Office
Cooling: Central Air
Heating: Electric
Lot Size: 0.44 Acres
Roof Type: Membrane
Taxes: $10,386
Year Built: 2007
Square Feet: 19,032

Feature Descriptions

Days on Site: 131
Directions: Take I-4 E and exit at South Street (Exit 82B). Turn left onto South Street, then right onto S Orange Avenue. The building at 189 S Orange Ave will be on your left, with the office located on the 19th floor. Parking is available nearby at SunTrust Plaza G
Exterior: Concrete
Flood Zone Code: X
Foundation: Stilt/On Piling
Home Warranty Y/N: No
Listing Terms: Cash, Conventional
Lot Dimensions: 0.44
Ownership: Other
Property Attached Y/N: No
Property Sub-Type: Office
Showing Instructions: 24 Hour Notice, Appointment Only, See Remarks, ShowingTime
Special Sale Provisions: None
Water Access Y/N: No
Zoning: AC-3A/T/HP

Listed By / Shown By

Listed By

Agency Name: ALPHA EQUITY REALTY & MANAGEMENT INC
Agency Contact: 407-789-1002

Shown By

Agent Name: Jennifer Saint
Agent Phone: (904) 477-0891
Agency Title: Watson Realty Corp., REALTORS ®

IDX logo

Disclaimer: All information deemed reliable but not guaranteed. All properties are subject to prior sale, change or withdrawal. Neither listing broker(s) or information provider(s) shall be responsible for any typographical errors, misinformation, misprints and shall be held totally harmless. Listing(s) information is provided for consumers personal, non-commercial use and may not be used for any purpose other than to identify prospective properties consumers may be interested in purchasing. Information on this site was last updated 03/12/2026. The listing information on this page last changed on 03/12/2026. The data relating to real estate for sale on this website comes in part from the Internet Data Exchange program of Delta Media Group MLS (last updated Thu 03/12/2026 2:58:28 AM EST) or GAMLS (last updated Wed 03/11/2026 11:14:54 PM EST) or Stellar MLS (last updated Thu 03/12/2026 1:59:09 AM EST) or SPC MLS (last updated Wed 03/11/2026 11:20:33 PM EST) or Martin MLS (last updated Wed 03/11/2026 11:38:11 PM EST) or Indian River MLS (last updated Wed 03/11/2026 11:30:23 PM EST) or Daytona MLS (last updated Wed 03/11/2026 11:36:50 PM EST) or Northeast Florida MLS (last updated Thu 03/12/2026 12:18:43 AM EST) or Beaches MLS (last updated Thu 03/12/2026 2:36:11 AM EST) or BORMLS (last updated Wed 03/11/2026 11:16:09 PM EST) or Golden Isles MLS (last updated Wed 03/11/2026 11:26:30 PM EST) or Amelia/Nassau MLS (last updated Wed 03/11/2026 11:25:21 PM EST) or Dixie Gilchrist Levy MLS (last updated Wed 03/11/2026 11:42:21 PM EST). Real estate listings held by brokerage firms other than Watson Realty Corp., REALTORS ® may be marked with the Internet Data Exchange logo and detailed information about those properties will include the name of the listing broker(s) when required by the MLS. All rights reserved.

Listing data and photos distributed by MLSGRID
Member Participants (and their affiliated licensees, if applicable) shall indicate on their websites that IDX information is provided exclusively for consumers’ personal non-commercial use, that it may not be used for any purpose other than to identify prospective properties consumers may be interested in purchasing, that the data is deemed reliable but is not guaranteed by MLS GRID, and that the use of the MLS GRID Data may be subject to an end user license agreement prescribed by the Member Participant’s applicable MLS if any and as amended from time to time. MLS GRID may, at its discretion, require use of other disclaimers as necessary to protect Member Participant, and/or their MLS from liability.
Based on information submitted to the MLS GRID. All data is obtained from various sources and may not have been verified by broker or MLS GRID. Supplied Open House Information is subject to change without notice. All information should be independently reviewed and verified for accuracy. Properties may or may not be listed by the office/agent presenting the information.



Privacy Policy / DMCA Notice / ADA Accessibility

Login to My Homefinder

Pixel